
二、于掛石幕墻工工藝說明
干掛石施工工藝流程如圖4。

1、測量放線:
當
主體結構基本完成后,安排施工人員把放戰場地清理好。并根據圖紙和土建提供的軸線在樓面上放線。先訂好“十”字線,然后根據大樓的實際形體在“十”字線的基礎上放出一個“#”宇線,作為測量該建筑物的粗基準。度量大樓的實體尺寸。將數據提供給設計室的設計人員。我幻根據設計人員確定的尺寸再進行修正基準。最后在每個
轉角位置確定控制
基準點,每個立面的中線,立面的出人面線等等。之后以基準,用垂準儀將基準點打到各層處定位置。為日后安裝控制超差打好基礎。
2、鋼架安裝
(1)、受力件安裝
安裝時,以基準點為基礎進行安排。當基準層的受力件安裝完畢后,必須對其進行一次槍查,修正確定符合設計要求后,由技術部
門或現場監理再作一次復查。確認合格后才能繼續向上或向下安裝受力件。在安裝每一層時要注意受力件的水平。每安裝一層時要進行全面的檢測,將水平和垂直超差控制在誤差范圍之內。另外,受力件鋼碼
焊接時要注意盡量采用對稱焊接來控制焊接應力變形,超差的要及時進行修正。
(2)、橫料的安裝
橫料安裝時必須按圖紙要求上全螺絲并檢查其水平。將已安裝的橫料進行一次水平調權后才能
打膠。
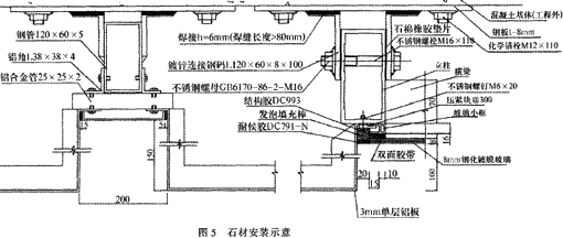
3、石材的安裝
石材容易破碎,在安裝過程中,要特別注意保護。在場地運輸或堆放過程中,要用木條將其底部墊好。當石材上墻時要保護好四個角,防止破損。石材安裝圖如5。

4、擠膠和清潔
石材幕墻安裝后要進行擠膠
填縫,先將石材之間的縫清理,然后用水或溶液清洗干凈,才能進行擠膠。膠縫表面一定要平整,光滑。不能
起皺紋。等膠干后應清潔石材表面。
通過上述對支架片接式石材幕墻強度設計方法和施工工藝的分析,著重介紹了其設計應用原理及施工工藝,期望對同行有一定的幫助和受益。
與【】相關熱點資訊:
【了解更多 “” 相關信息請訪問
幕墻專區 】
上一頁12下一頁