本文摘自:《建筑幕墻創新與發展》未經許可不得轉載
一、引言
隨著國內建筑業的高速發展,為體現建筑的藝術效果與建筑功能的實現,建筑幕墻得到大量的運用。幕墻作為建筑的外圍護結構,不但實現了豐富的建筑效果,并且,作為外圍護結構,在外墻結構的水密性、氣密性、保溫節能、通風開啟、抗震(詞條“抗震”由行業大百科提供)變形等優越的性能使之在建筑上得到廣泛的運用。
研究幕墻在建筑上的運用,首先需研究建筑所在地的氣候特征,建筑外圍護結構的各種性能特點,比如水密性、氣密性、保溫性都與建筑形態與建筑氣候密切相關;中國幅員遼闊,不同地區氣候變化很大,所以在研究幕墻性能特點時,須與建筑氣候一起統籌考慮;在這樣的設計思路指導設計出來的幕墻結構將非常符合建筑特征的針對性,并各種幕墻性能均具有較好的保障。
常見的幕墻防水設計思路有兩種,第一種是被動防水,即完全依靠外墻接縫的打膠(詞條“打膠”由行業大百科提供)進行密封封堵的防水。第二種是主動防水,通過優越的幕墻結構設計進行等壓腔體的布置,進行消除風壓對幕墻縫隙的影響,并進行合理的導排水路的布置進行主動導排水考慮,最終實現優越的幕墻水密性能。
通常認為,幕墻實現漏水的三個要素:1、有水存在,2、外墻表面有接縫存在,3、有能使水通過接縫進入室內的壓力存在。分析這三個要素,幕墻水密性的設計的重點即是如何消除使水通過接縫進入室內的壓力。一般情況下,對于單元體幕墻系統,幕墻技術是考慮通過設置等壓腔體進行消除壓力。國內幕墻行業設計人員、各種技術會議及各種招投標會議處處充滿了幕墻等壓腔體的講述,但事實上,在暴風雨下漏水的幕墻比比皆是,在嚴格的幕墻性能試驗過程中,能夠在一次性通過水密檢測的幕墻卻非常的少。幕墻水密性的考慮不應當僅僅停留在口頭理論階段,而應該深入分析理解設計原理,并通過工程經驗的不斷總結,理論聯系實際,并通過幕墻設計生產施工的實踐驗證,方可真實實現可靠幕墻的水密性能。
在實際的自然環境中,風壓是隨時變化的,雨水在變化的風壓下對幕墻的密封性能影響極大,并且,因為建筑的外表面的接縫非常繁多,要能夠保證所有的接縫均完好的有效密封幾乎是不可能的,上述第一種被動防水設計,即是將所有外露表面的各種接縫打膠密封,此密封膠縫隙將時刻處在風壓的作用下,無數的幕墻案例表明,按照這種思路完成的幕墻項目水密性能很差。在某些情況下(比如隱框構件式幕墻),當不得不使用被動防水設計施工時,建議根據建筑的形態、變形、密封膠的性能特點,對密封縫隙進行專門的處理。本文研究的重點是第二種主動防水方式,利用幕墻結構設計與等壓腔體導排水布置,消除與降低等壓腔內外的氣壓差,最大可能的阻擋水到達腔體的接縫,并將進入幕墻腔體的雨水盡快的排出室外;實際工程經驗表明,按照這種思路設計的幕墻水密性均能達到理想的指標。下面我們通過實際工程案例進行幕墻防水的分析。
二、蘇州中信金融港項目的幕墻概述

圖一 蘇州中信金融港項目效果圖
蘇州中信金融港商務中心項目由美國GP建筑設計公司與蘇州設計研究院股份有限公司進行設計,現代幕墻系統技術(蘇州)有限公司承擔幕墻系統設計顧問工作;項目位于蘇州工業園區南施街與現代大道交叉口,分為東樓與西樓。其中西樓為蘇州中信銀行辦公用樓,包括一棟112米高的22層塔樓和一棟3層裙樓建筑。東樓包括一棟156.8米高的42層服務式公寓塔樓,以及15米高的3層裙樓建筑。
蘇州中信金融港商務中心項目建筑外立面的設計概念是力求增強每棟塔樓的縱向高度感并與周圍較為沉穩的建筑群體形成對比,這一效果是通過3層樓高的帶角度的玻璃的縱向交錯排列來實現。這些復雜的帶角度的外墻變化給幕墻的設計帶來非常大的技術挑戰。
首先,我們對此項目進行氣候性能特征分析,蘇州地區位于北亞熱帶濕潤季風氣候區,年均降水量達1100毫米,溫暖潮濕多雨,季風明顯,四季分明,雨量充沛。蘇州地區時常遭受熱帶風暴(臺風)的暴風雨襲擊,每年在暴風雨水的襲擊下,許多的建筑幕墻出現漏水等破壞情況。針對此地區復雜的氣候特點,及分析本項目建筑外墻的特征,本項目的幕墻有較高的水密性要求,并須保證在臺風暴雨作用下的性能。
根據《建筑幕墻》GB/T 21086-2007,幕墻的雨水滲透性能以發生嚴重滲漏現象的前級壓力差值P作為分級依據,經過分析計算,固定部分值計算P=1370Pa,開啟部分值計算P=648Pa,根據規范,本項目幕墻的水密性性能分級為3級,此性能等級則為幕墻系統設計的水密性能目標。
三、幕墻系統防水設計
進行幕墻設計前,我們先對項目的外墻系統進行分類,本項目因為建筑造型復雜,外墻變化形式多樣,幕墻系統繁多,大致上可以分為塔樓凹凸結構單元體幕墻系統、垂直線條結構單元體幕墻系統、外挑玻璃肋結構單元體幕墻系統、裙樓采光頂幕墻結構、內平開窗(詞條“平開窗”由行業大百科提供)結構、裙樓構件式幕墻系統等等。本文通過典型的單元體幕墻系統進行防水設計的介紹。
單元體幕墻系統防水設計介紹:

圖二 幕墻典型分割大樣圖
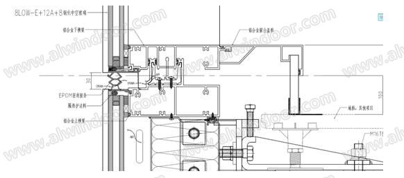
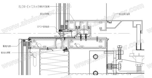
首先我們在建筑外立面設計的基礎上對幕墻進行單元劃分,按照橫向標準分割尺寸1690mm與1310mm,豎向一個樓層高度作為一個單元體板塊(見圖二)。圖三為本項目標準位置的單元體幕墻豎向節點,反映的是標準單元體左右豎向接縫密封處理方式,通過設置多個腔體,形成鋁合金公立柱與鋁合金母立柱,安裝時進行單元體公母立柱插接。圖四為本項目標準位置的單元體幕墻橫向節點,表達的是幕墻橫向接縫密封處理方式,通過單元板塊的安裝插接,完成幕墻等壓腔的實現及幕墻安裝的完成。

圖三 標準位置單元體幕墻豎向節點

圖四 標準位置單元體幕墻橫向節點
因幕墻系統要實現建筑的保溫節能性能,并要綜合防水排水的設計,在項目的系統設計時,綜合考慮了各個腔體的結構等壓腔的實現、膠條的合理布置、合理的導排水路徑、各類密封材料及生產裝配工藝的綜合運用而進行幕墻防水及節能的實現。
因本幕墻外觀為豎向明框橫向隱框,為了保證幕墻節能的完善,在幕墻節點設計中,框料采用美國亞松注膠節能進行設計,并在插接縫隙位置使用了專門設計的三元乙丙節能密封條(詞條“密封條”由行業大百科提供)與亞松隔熱(詞條“隔熱”由行業大百科提供)注膠節能型材及節能玻璃共同形成完善的節能體系。并為了考慮室外開敞接縫的堵水作用,通過接縫布置特殊形狀的膠條進行擠壓搭接,阻擋了下雨時大量雨水進入等壓腔的可能,并通過膠條隔斷室了外空氣與等壓腔空氣,避免風雨時氣壓引起的氣流流速過快對等壓腔的破壞作用。并因為橫豎向膠條的阻斷作用,避免的熱空氣的對流與熱量的輻射作用,大大提高了節能性能。
整個幕墻系統的設計均按照等壓結構排水及密封連續性的原則設計,以確保單元式鋁框架、窗間墻等各類綜合系統的整體水密性能。并且,在所有鋁框架構件之間的接縫,螺絲和螺栓,交接點擋水板,及其他所有配件均需按照技術要求進行密封膠密封處理,以組成一個嚴密連續的防水幕墻構件和要素。
前面我們介紹了項目所在地蘇州的氣候特征,蘇州地方雨水量大,并在臺風作用下的暴風雨襲擊對幕墻水密性影響與破壞非常之大。幕墻防水的理念之一就是保證等壓腔體的風壓與室外相等,但是,在室外隨時變化的風壓與雨水同時作用下,即使是完全密封的幕墻及門窗也會出現縫隙而漏水。當雨水在風壓作用下,超過等壓腔體的導排水設計限值時幕墻就會發生滲漏,所以幕墻的防水設計必須考慮這些動態可變的風壓影響的情況。
幕墻作為建筑的外圍護結構,還必須具備幕墻節能及變形承受的功能,需對于插接深度進行研究,考慮幕墻的變形位移,確保在發生幕墻變形時同樣能滿足幕墻的水密氣密功能。
在幕墻系統設計時,需考慮以下的位移對幕墻性能產生的影響,包括:設計荷載造成的翹曲,設計風荷載重復周期作用下造成的翹曲,建筑位移造成的尺寸和形狀改變:包括沉降、收縮(詞條“收縮”由行業大百科提供)、彈性(詞條“彈性”由行業大百科提供)壓縮、樓板梁撓度、裂縫、風造成的搖擺、地震活動、扭曲、傾斜、溫差和潮濕引起的位移。

圖五 單元幕墻(詞條“單元幕墻”由行業大百科提供)伸縮縫(詞條“伸縮縫”由行業大百科提供)設置示意
圖五表達的是單元體幕墻板塊之間的伸縮縫的設置與變形情況。根據伸縮縫的分析結果,確定標準位的插接伸縮縫尺寸為A。在變形時單元體板塊相對位移時,拉伸狀態下最大縫隙尺寸為B。在壓縮狀態下最小縫隙尺寸為C。幕墻系統設計的要求需保證在無論是在拉伸狀態還是在壓縮狀態下,均需保證幕墻的基本性能,并依舊能夠實現幕墻性能的保證。

圖六 幕墻節能計算云圖
圖六表達的是此幕墻系統節能計算的溫度圖,經過節能玻璃、注膠隔熱、密封膠條的合理設計,實現了較好的節能保溫性能,本項目的幕墻整體U值經過分析計算為2.2 W/(m2˙K),滿足了本項目節能的要求。

圖七 平面轉折變化的幕墻系統節點
在本項目中,因為建筑特征的特殊性,外幕墻不是一個連續完整的平面,而是具有很多各種角度的幕墻體系,對此,幕墻系統設計進行專門的分析考慮,使幕墻系統的密封性能保證連續完整。圖七為平面各種角度轉折變化的單元體幕墻系統做法。無論幕墻外觀是如何變化,均是按照等壓結構導排水及密封連續性的原則來進行復雜的系統考慮及細節設計,并在設計中同時考慮生產制造的可行性。圖八是各種角度轉折變化完成后面的幕墻實際照片。圖九是單元體幕墻在橫向前后進退交換的節點,通過上橫料的前后進退變化,實現建筑外立面的特殊效果,在進退變化中,依然維持防水密封的可靠連續過度關系。

圖八 角度轉折變化幕墻完成后現場照片

圖九 單元體幕墻橫向前后進退交換節點
作為單元體幕墻系統,底部收口也是防水設計的重點,一方面需保證幕墻與建筑底部防水的有效結合,另一方面要保證由單元接縫進到等壓腔體的雨水外排順暢。將鋁合金單元底橫料與土建結構的接縫進行可靠密封,并在密封膠外使用防水膜將底橫鋁合金料及結構表面有效防水覆蓋,最后在底橫料外面再安裝鋁合金板作為排水板,確保進入等壓腔的雨水及單元豎向縫隙進來的雨水可靠的外排,保證幕墻與建筑的整體水密性能,圖十是本項目的單元體幕墻底部收口設計。

圖十 單元體幕墻底部收口節點
四、幕墻模型性能試驗
在設計過程中,所有的幕墻系統設計與細節的考慮均是基于理論情況與過去的項目經驗而進行,但自然界復雜的氣候條件及建筑的不同特征與特點決定了每個項目的幕墻系統獨特性。所以,在進行幕墻大批量生產制造前需進行幕墻模型性能試驗的檢驗,并且根據試驗情況進行可能的設計與制造工藝的調整。
為了在試驗過程中準確模擬自然界的惡劣天氣,本模型的試驗采用了中國標準與美標動態水密性試驗相結合的試驗。按照美標AAMA 501.1-05,用飛機頭螺旋槳產生的最大風速對幕墻形成風壓,結合外雨水噴淋的做法,準確模擬狂風暴雨的狀態來測試幕墻系統的水密性能。
本項目試驗在江蘇省建筑工程質量檢測中心有限公司蘇州檢測基地進行,按照以下試驗流程進行:
(1)打開、關閉開啟窗50次。
(2)預加壓測試。
(3)國標氣密性測試(GB/T 15227)。
(4)美標氣密性測試(ASTM E283)。
(5)靜態水密性測試(ASTM E331)。
(6)動態水密性測試(AAMA501.1)。
(7)靜態水密性測試(GB/T 15227)。
(8)抗風壓性能試驗(GB/T15227)。
(9)抗風壓性能試驗(ASTM E330)。
(10)重復水密性試驗 (ASTME331)。
(11)平面內變形性能-豎直方向。AAMA501.4
(12)重復水密性試驗 (ASTME331)。
(13) 平面內變形性能-水平方向。AAMA501.4
(14) 平面內變形性能-水平方向。GB/T 18250
(15)重復水密性試驗 (ASTME331)。
(16)垂直于幕墻平面方向變形性能 AAMA501.4
(17)重復水密性試驗 (ASTME331)。
(18)擦窗機銷座荷載試驗。
(19)重復美標氣密性測試(ASTM E283)。
(20)重復水密性試驗 (ASTME331)。
(21) 1.5倍設計風壓測試(ASTME330)。
試驗將國標規范與美國規范進行了整合,對水密性試驗進行了強化,進行了動態水密性試驗與多次的重復水密性試驗,確保在試驗中能夠發現幕墻系統設計與生產制造上的不足。

圖十一 實體幕墻模型試驗過程中

圖十二 模型試驗的出現的部分漏水

圖十三 模型試驗的開啟窗部位漏水
在動態水密性測試(AAMA501.1)過程中,由飛機頭螺旋槳產生的最大風速對幕墻形成風壓,在15S 內施加至1000Pa的壓力,在該壓力下以3.4 L/(m2·min)的淋水速度,持續淋水15 分鐘,淋水裝置為外噴淋,在此條件下檢查幕墻固定部分接縫是否有滲漏。在解除壓力情況下,關閉淋水裝置,待模型狀態穩定,進行檢查試驗過程出現的部分漏水,根據滲漏情況,進行檢查分析滲漏的原因,改進幕墻系統生產制造工藝。
在本項目試驗過程中,有多次重復性的水密性試驗。在進行抗風壓試驗與變形位移試驗后面再進行多次重復水密性試驗,這樣能夠檢測幕墻在經過狂風暴雨及位移變形后需繼續保持幕墻水密性的功能。
在檢測過程中,幕墻模型發生了開啟窗漏水及多點固定玻璃漏水的情況。在對照生產裝配圖紙與現場樣板情況,發現漏水的部分原因如下:
1, 部分單元體板塊裝配工藝不合格,應密封處理的地方沒有進行有效密封。
2, 部分單元體排水孔沒按圖生產,導致雨水導排不暢。
3, 模型單元體樣板封邊料沒完全按圖施工,導致模型封邊處漏水。
4,開啟窗膠條設置有誤,導致密封性差。
針對模型檢測中發生的問題,查找原因,分析問題,進行改進幕墻工藝制造,并提出更高的質量標準,這些修訂工藝文件同時作為批量生產幕墻的工藝依據與檢查文件。
五 現場質量檢查
在幕墻進行生產施工過程中,作為本項目的幕墻設計方與幕墻顧問工程師,對幕墻生產制造過程中每一個工藝環節進行質量的檢查工作。對照項目施工圖生產圖技術要求及規范,在幕墻承包商生產工廠進行全面的質量檢查工作,對于影響防水方面的工藝是檢查中的重點。在檢查中,也發現了若干的質量問題,包括:打膠不合格、鋁材銑切錯誤、膠條密封情況、型材裝配拼接等各種各樣的問題。通過檢查結果,要求幕墻承包商進行改進生產工藝施工工藝,并制定有效的質量管理方式。

圖十四 質量檢查典型問題照片

圖十五 質量檢查典型問題照片
圖十四與圖十五,是在幕墻承包商生產工廠進行質量檢查時發現質量問題的典型照片。這些問題反映了工廠對技術質量要求的不足,細節裝配拼縫密封不能夠滿足技術要求,在工藝孔加工時破壞單元體幕墻插接翅,這樣的單元體幕墻將不可避免的帶來漏水的出現。對于這些工藝水平不滿足技術要求與規范的,立即停止生產作業,進行工藝整改,重新制定可行的工藝文件與質量檢查文件,經過建筑師、顧問、監理、業主代表聯合審批認為可以達到質量要求方可繼續進行生產工作。
在現場安裝過程中,為驗證現場幕墻安裝完成后的水密情況,根據AAMA501.2-03及其描述的設備,進行現場的幕墻淋水試驗。選取現場的已完工的幕墻單元,分別按照確定的測試階段與板塊分別進行測試。按照AAMA501.2-3,選擇滿足要求的噴嘴,確定試水水壓,在距離玻璃表面305mm左右,對著幕墻垂直接縫與橫向接縫及開啟接縫進行現場噴淋,并進行緩慢的來回移動,以觀察幕墻的密封情況。如果在試驗中發生漏水情況的,必須及時檢查分析原因,改進問題所在,降低以后產生幕墻漏水的機會。并在現場幕墻問題修改完成后再次進行現場淋水試驗,確保最終幕墻的水密性能。
六 幕墻防水的總結
建筑幕墻的防水是一個系統工程,本文也僅僅介紹了典型的設計思路與水密性試驗方式。但是,針對具體某一個幕墻項目而言,防水的考慮必須針對項目的每一個外墻技術環節,每一個工藝過程,分析考慮外幕墻的各種標準系統的導排水設計,各類轉角的設計,及不同幕墻之間的防水考慮,女兒墻收口位置,景觀地面收口位置,都是幕墻防水的重點考慮環節。
幾乎所有的圖紙的設計都僅僅是表達理想狀態,性能試驗的檢測也僅僅是對來樣負責,在具體幕墻項目的實施過程中,工程師必須針對每一個工藝環節進行質量的檢查工作。事實上,國內的幕墻承包商技術能力參差不齊,幕墻專業的技術工人也非常的缺乏,在很多時候,能夠將圖紙表達的幕墻系統變成理想狀態的幕墻產品,其道路非常的漫長。
只有對幕墻系統設計、幕墻制造工藝、幕墻質量品質、現場質量檢查等各工作階段的全面的有效控制,在生產施工中遇到問題能夠及時落實,研究問題的原因并有效解決問題,最終才能夠實現比較完美的幕墻產品與可靠的幕墻水密性保證。
參考文獻:
[1]《建筑幕墻》GB/T 21086-2007
[2]《建筑幕墻氣密、水密、抗風壓性能檢測方法》 GB/T 15227-2007
[3] AAMA501.1-05 Standard Test Method For Water Penetration Of Windows, Curtain Walls And Doors UsingDynamic Pressure
[4] AAMA501.2-03 Quality assurance and diagnostic water leakage field check of installed storefronts, curtain walls, and sloped glazing systems
[5] 蘇州中信金融港商務中心幕墻項目施工圖