本篇文章內容由[中國幕墻網ALwindoor.com]編輯部整理發布:
一、項目概況
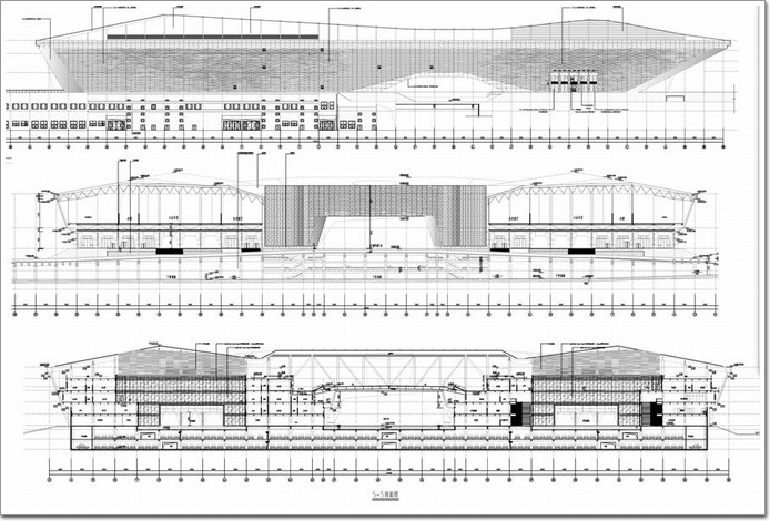
新落成的重慶科學會堂,是一座以 “始于自然,歸于科學” 為核心理念,融合 “大式建筑” 氣度與 “山水會堂” 靈秀的劃時代地標(詞條“地標”由行業大百科提供)建筑。項目通過 “筑高臺” 的宏偉建造方式,將重慶山水的靈動變幻與科學的理性光芒凝聚于一體,最終呈現出極為壯觀、科幻與驚艷的建筑形象。
項目總建筑面積達247,438.32平方米。建筑主體長320米,寬279米,高54米,其立面幕墻面積約15萬平方米,金屬屋面(詞條“金屬屋面”由行業大百科提供)面積達7.5萬平方米,整體用鋼量約5.8萬噸,相當于8.3座埃菲爾鐵塔的用鋼量。

項目主要參建單位:
建設單位:中電建(重慶)城市建設發展有限公司
建筑設計:中國電建集團華東勘測設計研究院有限公司
總承包單位:中電建路橋集團有限公司(牽頭方)
幕墻設計單位:蘇州金螳螂幕墻有限公司
二、項目主要特點
空前規模與復雜系統:作為巨型異形建筑,其外立面及屋面裝飾系統種類繁多,涵蓋了從各類幕墻到金屬屋面、從巨型門(詞條“門”由行業大百科提供)系統到采光頂等十余種子系統,設計與施工協調難度極高。
建筑藝術與科技美學深度融合:項目成功將“日晷”等傳統文化元素以現代科技手法轉譯為建筑語言,并通過先進的材料與照明技術,使建筑在白天與夜晚呈現出不同的光影層次與藝術效果。
全專業協同的數字化設計:采用同一平臺進行建筑、結構、幕墻、機電等全專業的三維協同設計,通過持續的碰撞分析與糾偏,實現了從方案到施工圖的無縫銜接與高完成度。
工業化與裝配化的建造模式:廣泛采用裝配式設計,幕墻等構件(詞條“構件”由行業大百科提供)工廠預制、現場掛接安裝,極大地提升了施工精度、效率與工程質量。
三、幕墻系統核心設計內容與技術成就
幕墻系統是本項目技術復雜性與藝術表現力的集中體現。
1. 主要設計內容
幕墻系統是一個集成了多種先進體系的復合工程,主要包括:
立面陽極氧化蜂窩復合板造型幕墻(主導立面形象)
大跨鋼框架玻璃幕墻(提供通透視野與開放空間)
高性能UHPC(超高性能混凝土)裝飾門套(詞條“門套”由行業大百科提供)(塑造宏偉入口)
復合式直立鎖邊金屬屋面外加蜂窩復合鋁板系統(實現復雜的屋頂造型與功能)


南區“日晷”造型幕墻、各類采光頂、格柵、吊頂及巨型門系統等。
2. 設計特點與關鍵技術應用
全流程BIM與參數化設計:BIM技術貫穿于方案設計、施工圖設計、施工及運維管理的全過程。針對約20,000個陽極氧化(詞條“氧化”由行業大百科提供)蜂窩板單元(其中異形雙曲板約2,000個),利用參數化設計進行精準的板塊分割與形態優化,確保了8個角部雙曲盒子造型的流暢過渡與極高精度,實現了復雜曲面建筑的“數字化孿生”。

特色材料的創新應用:陽極氧化鋁蜂窩復合板作為建筑主表皮,該材料兼具輕盈、高強、耐候性(詞條“耐候性”由行業大百科提供)佳和極致平整的優點。其獨特的金屬質感與光影效果,完美詮釋了“山水波光”與“科學睿智之光”的設計意象。
高性能UHPC裝飾板:應用于最高達18.7米的門頭。UHPC材料實現了大尺度無分縫的宏偉效果,其表面嵌入的鵝卵石與石子,為現代科技感增添了質樸莊重的藝術氣息,是材料美學的一次成功探索。

• 裝配化建造技術:基于BIM與參數化設計生成的數據,直接驅動工廠進行構件的數控精密加工與預制。現場采用“掛接式”裝配安裝,這不僅是對傳統建筑施工模式的革新,也確保了如此大規模復雜工程得以高質量、高效率地完成。

四、 項目取得的成功
• 重慶科學會堂項目的成功,不僅在于其壯觀的建筑形象如期落成,更在于它為中國復雜大型公建項目樹立了新的標桿。它成功地
實現了科技與藝術的完美融合,將抽象的設計理念轉化為可感知的建筑杰作。驗證了全流程BIM、參數化設計與裝配化建造在現代工程中的巨大價值,引領了行業技術變革。通過一系列特色材料的創新應用,拓展了建筑表觀藝術的表達邊界。該項目不僅是重慶的新地標,更是中國當代建筑設計、工程技術與項目管理水平邁向世界前列的有力證明。